Обяви 0 За нас Контакти
Продава 2-СТАЕН
град Пловдив, Остромила
При запитване
Коригирана в 11:24 на 16 април, 2026 год.
Обявата е посетена 580 пъти.
Площ:
72 m2
Етаж:
2-ри от 4
Строителство:
Тухла, Ще бъде въведен в експлоатация 2026 г.

Описание на имота:


📢 ДИРЕКТНО ОТ ИНВЕСТИТОР 0% КОМИСИОН 📢 ОФЕРТА: 11569
◆ Агенция 'ГОЛД ИМОТИ' има удоволствието да Ви предложи, нов комплекс от затворен тип, в кв. Остромила, разполагащ с едностайни, двустайни и тристайни апартаменти.

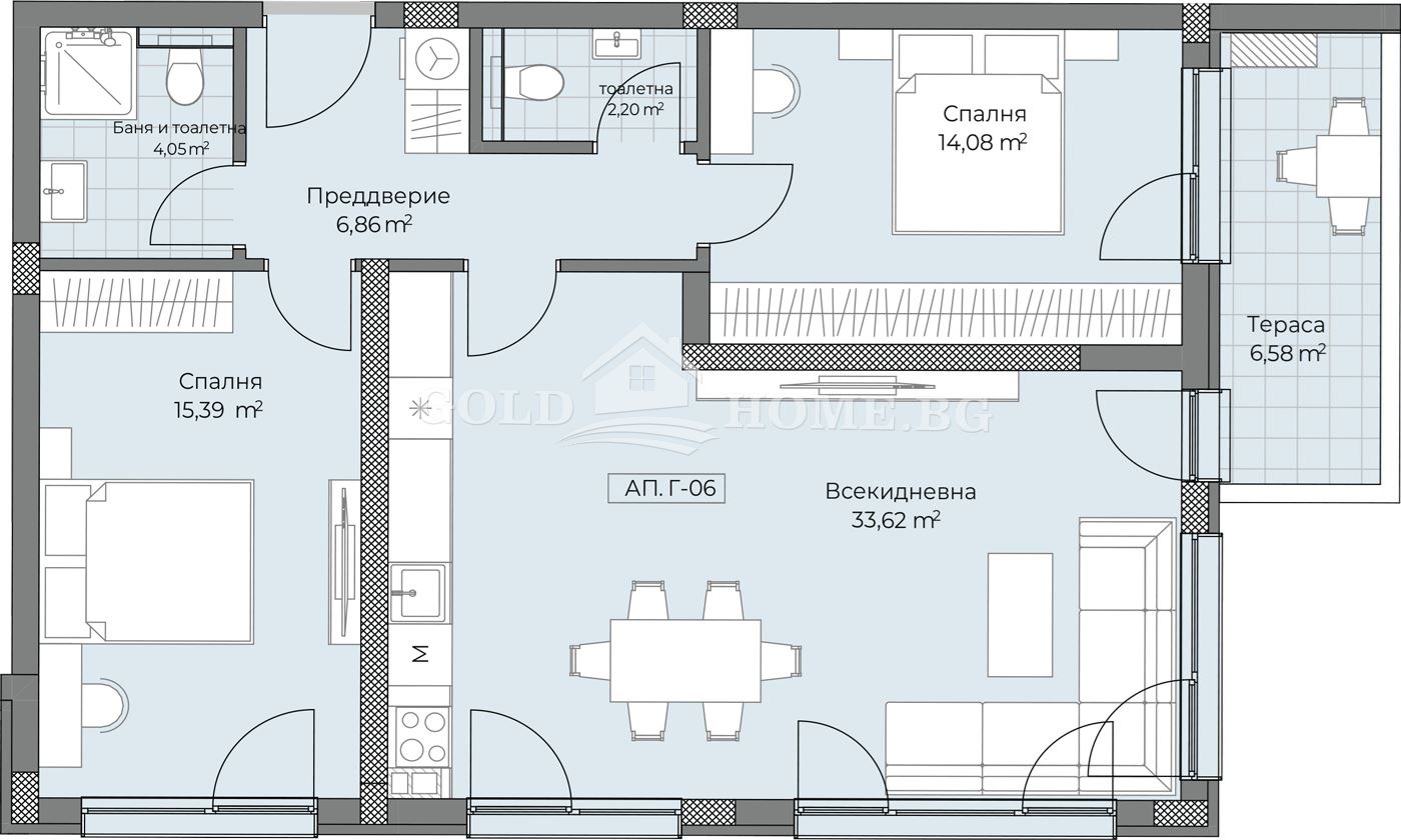
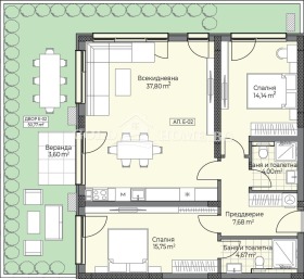
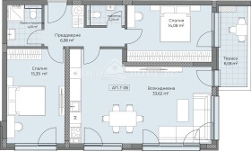
✔️ Двустайните жилища се състоят от:
Входно антре, всекидневна с кухненски бокс, спалня, баня с тоалетна, тераса и килер/избено помещение.

🏗️ Степен на завършеност:
Апартаментите ще се издават по БДС: шпакловка и замазка, изградена ВиК, ел. инсталация с монтирани ключове и контакти и ел. табла, окабеляване за телефон и интернет, дограма с троен стъклопакет, входни блиндирани врати.

👉 Предимства:
➤ Строителството ще бъде изпълнено от доказан инвеститор, като за изграждането на обекта ще бъдат използвани висококачествени материали.
➤ Височина на таваните - 3 метра.

🏡 За удобството на живущите в комплекса са предвидени:
- магазини за хранителни стоки
- кафе
- контролиран достъп 24/7
- видеонаблюдение
- зарядна станция за електромобили.

🚙 Паркиране:
Възможност за закупуване на партерни гаражи и надземни паркоместа.

📄 Срокове на изпълнение:
Към момента сградата е с АКТ 14. АКТ 16 се очаква пролетта на 2026г.

📌 Локация:
-Сградата се намира в тих и спокоен район, характеризиращ се с ниско строителство и богато озеленяване, с бърз достъп до централен булевард.

➡️ ГОЛД ИМОТИ Ви предлага да се възползвате от професионално кредитно посредничество чрез Credit Center при ипотека, потребителски кредит и рефинансиране!
-УСЛУГАТА Е ИЗЦЯЛО БЕЗПЛАТНА!
-ИЗГОТВЯНЕ НА НЯКОЛКО ОФЕРТИ ОТ ВОДЕЩИ БАНКИ!
-НАЙ-ИЗГОДНИ УСЛОВИЯ СПРЯМО ВАШИЯТ ПРОФИЛ!
-НЕ Е НЕОБХОДИМО ДА СЕ РАЗКАРВАТЕ ВЪВ ВСЕКИ КЛОН НА РАЗЛИЧНИ БАНКИ!
➡️ Още атрактивни оферти може да намерите на нашия сайт goldhome.bg
📲За повече информация и при интерес за оглед, моля свържете се с нас.
Особености
Тухла
Асансьор
С гараж
С паркинг
Интернет връзка
Контрол на достъпа
За контакт:
0894 274 966
Брокер:
Таня Сатанска
0894274966
Офис: улица '' Брезовска '' 31а
Още оферти от брокера: Продава | Дава под наем | Купува | Наема
Агенция:
ГОЛД ИМОТИ
0899143262
ГОЛД ИМОТИ logo
Медал за прослужено време
В imot.bg от 2018 г.
gold_imoti.imot.bg
Адрес:
област Пловдив, гр. Пловдив, улица '' Брезовска '' 31а
ИЗПРАТИ ЗАПИТВАНЕ
ИЗПРАТИ ЗАПИТВАНЕТО

Продава 2-СТАЕН
град Пловдив, Остромила
Обява: 1b176899301402105

При запитване

ЗАПАЗИ ОБЯВАТА

Местоположение: град Пловдив, Остромила

Допълнителни данни за имотите в района и сравнение с други райони

Покажи

Период

и 5 месеца

* Средните цени са определени чрез медианна стойност